Zawór zwrotny typu wahadłowego PVC-C H44F-10V DN15-300 GB Standard

Wysokiej jakości zawór zwrotny z szarego PCV-C typu wahadłowego DN15-DN300 pn16 6-calowy plastikowy zawór zwrotny waflowy do zastosowań chemicznych i przemysłowych
Pochodzenie: Chiny
Nazwa marki: KXPV
Numer modelu: H44F-10V
Zastosowanie: Ogólne
Materiał: tworzywo sztuczne
Temperatura mediów: średnia temperatura, normalna temperatura
Ciśnienie: średnie ciśnienie
Zasilanie: ręczne
Media: Kwas
Rozmiar portu: DN15-DN300
Struktura: Sprawdź
Nazwa produktu: Zawór zwrotny waflowy
Kolor: szary
Pakowanie: Pudełko kartonowe
Czas dostawy: 7 dni
MOQ: 1 sztuka

Klasa ciśnienia: 1,0Mpa (10 barów)

Cechy strukturalne produktu

1. Aby zapobiec zjawisku przeciwprądu cieczy, aby chronić sprzęt pompy.
2. Ponieważ jest to zawór zwrotny wspornikowy, opór przepływu jest mniejszy.
3. Dzięki zastosowaniu wszystkich tworzyw sztucznych zapewnia wyjątkową odporność na żrące płyny, takie jak kwasy i zasady.
4. Nie tylko zdejmij korpus zaworu z rurociągu, ale także otwórz pokrywę w celu wewnętrznej kontroli i konserwacji.

Lista ograniczeń temperaturowych aplikacji

Materiał Średnia temperatura℃ Materiał Średnia temperatura℃
PCV-C -20 ℃ ~ 95 ℃ PCV-U -5 ℃ ~ 45 ℃
FRPP -20 ℃ ~ 120 ℃ PPH -20 ℃ ~ 110 ℃
PVDF 40 ℃ ~ 150 ℃

Tabela materiałów części

Nie.

Imię

Materiał

1

Nakrętka kołpakowa

FRPP

2

Maska

FRPP, PVDF, PVC-C, PVC-U, PPH

3

Rocker

FRPP, PVDF, PVC-C, PVC-U, PPH

4

Zakrywanie

FRPP, PVDF, PVC-C, PVC-U, PPH

5

Pierścień uszczelniający

EPDM, FPM

6

Nakrętka uszczelniająca

FRPP, PVDF, PVC-C, PVC-U, PPH

7

Korbowód

FRPP, PVDF, PVC-C, PVC-U, PPH

8

Ciało

FRPP, PVDF, PVC-C, PVC-U, PPH

9

Śruba sześciokątna

Stal, stal nierdzewna

10

O-ringi

EPDM, FPM

11

Śruba sześciokątna

FRPP, PVDF, PVC-C, PVC-U, PPH

12

Wypełnienie miejsca

Stal, stal nierdzewna

13

Nakrętka sześciokątna

Stal, stal nierdzewna

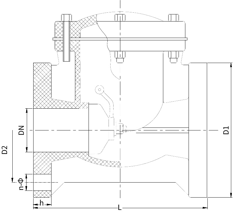
Rysunek szczegółowy zespołu zaworu zwrotnego typu wahadłowego

Lista wymiarów

DN (mm) D d L b n-Φ
GB JIS ANSI GB JIS ANSI
15(1/2") 115 65 70 160 18 4-Φ14 4-Φ15
20(3/4") 115 75 75 69.9 160 18 4-Φ14 4-Φ15 4-Φ16
25(1") 115 85 90 79.4 160 18 4-Φ18 4-Φ19 4-Φ16
32(11/4") 145 100 100 170 20 4-Φ18 4-Φ19
40(11/2") 145 110 105 98.4 170 20 4-18 4-Φ19 4-Φ16
50(2") 160 125 120 120.7 200 21 4-Φ18 4-Φ19 4-Φ18
65(21/2") 180 145 140 139.7 245 25 4-Φ18 4-Φ19 4-Φ18
80(3") 195 160 150 152.4 265 26 8-Φ18 8-Φ19 4-Φ18
100(4") 230 180 175 190.5 300 26 8-Φ18 8-Φ19 8-Φ18
125(5") 250 210 210 215.9 350 30 8-Φ18 8-Φ23 8-Φ22
150(6") 280 240 240 241.3 400 30 8-Φ22 8-Φ23 8-Φ22
200(8") 340 295 290 298.5 500 30 8-P22 12-Φ23 8-Φ22
250(10") 390 350 355 362 575 38 12-Φ22 12-Φ25 12-Φ26
300(12") 445 400 400 575 38 12-s22 16-Φ25

Wiadomość zwrotna
[#wejście#]
O nas
Kaixin Pipeline Technologies Co., Ltd.
Założona w 1999 roku, Kaixin Pipeline Technologies Co., Ltd. to zaawansowane technologicznie przedsiębiorstwo integrujące badania i rozwój, produkcję, sprzedaż i serwis. Firma posiada wiele prestiżowych certyfikatów, w tym National High-Tech Enterprise, „Little Giant” wyspecjalizowane i wyrafinowane MŚP, krajowy mistrz pojedynczego produktu (uprawa), prowincjonalne MŚP oparte na technologii, wyspecjalizowane i wyrafinowane MŚP w Ningbo, mistrz pojedynczego produktu w Ningbo (uprawa), centrum badawczo-rozwojowe w zakresie technologii rur i zaworów polimerowych w Ningbo, zielona fabryka na poziomie okręgu, czterogwiazdkowe przedsiębiorstwo w zakresie innowacji w zarządzaniu oraz poziom dojrzałości zarządzania danymi przedsiębiorstwa 2.
Specjalizujemy się w opracowywaniu, produkcji i dostarczaniu niemetalowych, odpornych na korozję produktów do zastosowań chemicznych, w tym plastikowych zaworów, rur, złączek rurowych i odpornych na korozję pomp. Nasze portfolio produktów obejmuje materiały takie jak PVC-C, PVC-U, PVDF, PPH i FRPP, z szeroką gamą typów i specyfikacji. Warto zauważyć, że nasze przepustnice mogą osiągać średnicę DN1000, a rury i kształtki do DN800, co pozwala wypełnić luki rynkowe i utrzymać naszą przewagę konkurencyjną w branży.
Kierując się zasadą „Napędzani technologią, dotrzymując kroku czasom”, Kaixin przeznacza prawie 10 milionów RMB rocznie na badania i rozwój. Zapewniamy najwyższą jakość produktów poprzez standaryzowaną, zautomatyzowaną produkcję i rygorystyczne pozyskiwanie importowanych surowców. Zgodnie z naszą międzynarodową strategią rozwoju stale monitorujemy światowe trendy rynkowe i wykorzystujemy kanały cyfrowe, aby dostarczać klientom na całym świecie wysokiej jakości produkty „Made in China”.
Ningbo • Baza badawczo-rozwojowa i produkcyjna Fenghua
Dzięki inwestycji o łącznej wartości 200 milionów RMB firma Kaixin Ultra-Pure Pipe Technology (Ningbo) Co., Ltd. utworzyła nowe laboratorium materiałowe we współpracy z uniwersytetami i instytutami badawczymi, zbudowała nowoczesną bazę produkcyjną i zainstalowała 8 w pełni zautomatyzowanych linii produkcyjnych do modyfikowanych tworzyw sztucznych i 8 do materiałów polimerowych. Obiekt zajmuje się badaniami i rozwojem, produkcją i zastosowaniem nowych modyfikowanych tworzyw sztucznych i materiałów polimerowych. Kaixin angażuje się także w przyciąganie najlepszych talentów z różnych dziedzin, ciągłe wprowadzanie innowacji w produktach i rozwój marki, a jego celem jest zdobycie pozycji rozpoznawalnego na całym świecie lidera w dziedzinie badań i rozwoju oraz produkcji polimerowych zaworów, rur i złączek.
Świadectwo honorowe
  • honor
  • honor
  • honor
  • honor
  • honor
  • honor
  • honor
  • honor
  • honor
Wiadomości