Lista ograniczeń temperaturowych aplikacji
Materiał Średnia temperatura℃ Materiał Średnia temperatura℃
PCV-C -20 ℃ ~ 95 ℃ PCV-U -5 ℃ ~ 45 ℃
FRPP -20 ℃ ~ 120 ℃ PPH -20 ℃ ~ 110 ℃
PVDF 40 ℃ ~ 150 ℃

Cechy strukturalne produktu

1. Doskonała odporność na ciepło
Polipropylen wzmocniony to materiał powstały w wyniku dodania włókna szklanego do czystego PP, co poszerza jego zakres zastosowań. Jego zwiększona odporność na ciepło przezwycięża nieodłączną wadę PP w zakresie wytrzymałości mechanicznej, zachowując jednocześnie doskonałą odporność na korozję i zwiększając temperaturę roboczą.
2. Wysoka wytrzymałość mechaniczna i doskonała odporność na zużycie
Jego wytrzymałość, sztywność, twardość i odporność na ciepło przewyższają polietylen niskociśnieniowy.
Jego niski współczynnik rozszerzalności liniowej zapewnia doskonałą odporność na kwasy, zasady i ciepło.
3. Doskonała odporność na uderzenia
Skurcz formowania: 1,0-2,5%, znacznie zmniejszający skurcz i znacznie poprawiający sztywność. Oferuje doskonałe właściwości elektryczne i izolację wysokiej częstotliwości, na którą nie ma wpływu wilgoć.
4. Szeroki zakres zastosowań
FRPP, ze względu na niski koszt materiału, długą żywotność i łatwą instalację, jest szeroko stosowany w systemach rurociągów dla przemysłu chemicznego, włókien chemicznych, chlorowo-alkalicznych, barwników, zaopatrzenia w wodę i drenażu, spożywczego, farmaceutycznego, oczyszczania ścieków i elektrolizy.

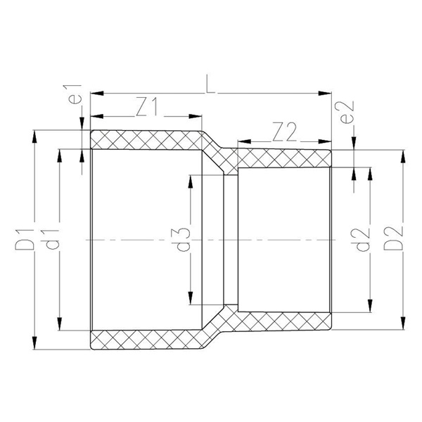
Reduktor FRPP

DN D1 D2 d1 d2 d3 L Z1 Z2 e1 e2
20*15 33 28 25 20 16 46.5 19 16 4 4
25*15 40 33 32 20 16 54.5 22 16 4 6.5
25*20 40 33 32 25 21 54.5 22 19 4 4
32*15 50 33 40 20 16 67 26 16 5 6.5
32*20 50 32.5 40 25 21 67 26 19 5 4
32*25 50 40 40 32 28 68 26 22 5 4
40*25 62 40 50 32 28 74 31 22 6 4
40*32 62 49.5 50 40 36 80 31 26 6 5
50*15 74.5 40 63 20 16 80.5 37.5 16 6 10
50*20 74.5 40 63 25 21 80.5 37.5 19 6 7.5
50*25 74.5 40 63 32 28 80.5 37.5 22 6 4
50*32 74.5 50 63 40 36 85 37.5 26 6 5
50*40 74.5 62 63 50 45 92 37.5 31 6 6
65*32 89 50 75 40 36 97 43.5 26 7 5
65*40 89 62 75 50 45 103 43.5 31 7 6
65*50 89 74.5 75 63 58 110.5 43.5 37.5 7 6
80*40 105.5 62 90 50 45 108.5 51 31 8 6
80*50 105.5 74 90 63 58 114 51 37.5 8 5.5
80*65 105.5 89.5 90 75 69 127.5 51 44 8 7.5
100*40 124.5 65 110 50 45 129 61 31 7 7.5
100*50 124.5 75 110 63 58 137 61 37.5 7 6
100*65 124.5 90 110 75 69 142 61 43.5 7 7.5
100*80 124.5 105 110 90 84 149.5 61 50.5 7 7.5
125*50 159 76 140 63 58 151 76 37.5 9.5 6.5
125*65 159 90 140 75 69 158 76 43.5 9.5 7.5
125*80 159 105 140 90 82 167.5 76 51 9.5 7.5
125*100 159 124.5 140 110 102 180 76 61 9.5 7
150*80 180.5 104.5 160 90 82 172.5 86 51 10 7
150*100 180.5 127 160 110 102 186 86 61 10 8.5
150*125 180.5 159.5 160 140 130 208 86 76 10 9.5
200*80 244 104.5 225 90 82 206 118.5 51 9.5 7
200*100 244 124.5 225 110 102 216 118.5 61 9.5 7
200*125 244 158 225 140 130 231.5 118.5 76 9.5 9
200*150 244 182 225 160 150 253.5 118.5 86 9.5 11
Wiadomość zwrotna
[#wejście#]
O nas
Kaixin Pipeline Technologies Co., Ltd.
Założona w 1999 roku, Kaixin Pipeline Technologies Co., Ltd. to zaawansowane technologicznie przedsiębiorstwo integrujące badania i rozwój, produkcję, sprzedaż i serwis. Firma posiada wiele prestiżowych certyfikatów, w tym National High-Tech Enterprise, „Little Giant” wyspecjalizowane i wyrafinowane MŚP, krajowy mistrz pojedynczego produktu (uprawa), prowincjonalne MŚP oparte na technologii, wyspecjalizowane i wyrafinowane MŚP w Ningbo, mistrz pojedynczego produktu w Ningbo (uprawa), centrum badawczo-rozwojowe w zakresie technologii rur i zaworów polimerowych w Ningbo, zielona fabryka na poziomie okręgu, czterogwiazdkowe przedsiębiorstwo w zakresie innowacji w zarządzaniu oraz poziom dojrzałości zarządzania danymi przedsiębiorstwa 2.
Specjalizujemy się w opracowywaniu, produkcji i dostarczaniu niemetalowych, odpornych na korozję produktów do zastosowań chemicznych, w tym plastikowych zaworów, rur, złączek rurowych i odpornych na korozję pomp. Nasze portfolio produktów obejmuje materiały takie jak PVC-C, PVC-U, PVDF, PPH i FRPP, z szeroką gamą typów i specyfikacji. Warto zauważyć, że nasze przepustnice mogą osiągać średnicę DN1000, a rury i kształtki do DN800, co pozwala wypełnić luki rynkowe i utrzymać naszą przewagę konkurencyjną w branży.
Kierując się zasadą „Napędzani technologią, dotrzymując kroku czasom”, Kaixin przeznacza prawie 10 milionów RMB rocznie na badania i rozwój. Zapewniamy najwyższą jakość produktów poprzez standaryzowaną, zautomatyzowaną produkcję i rygorystyczne pozyskiwanie importowanych surowców. Zgodnie z naszą międzynarodową strategią rozwoju stale monitorujemy światowe trendy rynkowe i wykorzystujemy kanały cyfrowe, aby dostarczać klientom na całym świecie wysokiej jakości produkty „Made in China”.
Ningbo • Baza badawczo-rozwojowa i produkcyjna Fenghua
Dzięki inwestycji o łącznej wartości 200 milionów RMB firma Kaixin Ultra-Pure Pipe Technology (Ningbo) Co., Ltd. utworzyła nowe laboratorium materiałowe we współpracy z uniwersytetami i instytutami badawczymi, zbudowała nowoczesną bazę produkcyjną i zainstalowała 8 w pełni zautomatyzowanych linii produkcyjnych do modyfikowanych tworzyw sztucznych i 8 do materiałów polimerowych. Obiekt zajmuje się badaniami i rozwojem, produkcją i zastosowaniem nowych modyfikowanych tworzyw sztucznych i materiałów polimerowych. Kaixin angażuje się także w przyciąganie najlepszych talentów z różnych dziedzin, ciągłe wprowadzanie innowacji w produktach i rozwój marki, a jego celem jest zdobycie pozycji rozpoznawalnego na całym świecie lidera w dziedzinie badań i rozwoju oraz produkcji polimerowych zaworów, rur i złączek.
Świadectwo honorowe
  • honor
  • honor
  • honor
  • honor
  • honor
  • honor
  • honor
  • honor
  • honor
Wiadomości