Złącze PVC-C DN15-600 1/2"-24" Norma ANSI

Złączki rurowe PVC-C z PVC DN15-600 Złączki proste z tworzywa sztucznego przemysłowe, do zaopatrzenia w chemikalia i wodę Norma ANSI SCH80
Pochodzenie: Chiny
Nazwa marki: KXPV
Proces: kute
Połączenie: gniazdo
Materiał: PVC-C
Kolor: Jasnoszary
Kształt: równy
Kod głowy: Okrągły
Rozmiar: DN15-600
Zastosowanie: Przemysł
Opakowanie: Karton
Ciśnienie robocze: 1,6 MPa
Czas dostawy: 7 dni
Minimalna ilość zamówienia: 1 sztuka

Lista ograniczeń temperaturowych aplikacji
Materiał Średnia temperatura℃ Materiał Średnia temperatura℃
PCV-C -20 ℃ ~ 95 ℃ PCV-U -5 ℃ ~ 45 ℃
FRPP -20 ℃ ~ 120 ℃ PPH -20 ℃ ~ 110 ℃
PVDF 40 ℃ ~ 150 ℃

Cechy strukturalne produktu

1. Doskonała odporność chemiczna: zakres temperatur jest szeroki od -20 ℃ do 95 ℃. Zawartość jonów w ośrodku spełnia standardy wody ultraczystej. Parametry higieniczne są zgodne z krajowymi normami sanitarnymi.
2. Znakomita wytrzymałość, wytrzymałość i odporność na korozję chemiczną: Materiał zapewnia doskonałą wytrzymałość i odporność na korozję chemiczną.
3. Trwałość: Wyjątkowa odporność na starzenie i promieniowanie UV znacznie wydłużają żywotność w porównaniu do innych systemów rurowych.
4. Niska przewodność cieplna: Przewodność cieplna wynosi około 1/200 stali; właściwości zmniejszające palność są samogasnące.
5. Lekki: waży tylko około 1/5 rur stalowych i 1/6 rur miedzianych.
6. Niski opór, wysokie natężenie przepływu: Gładka i czysta ściana rury powoduje minimalny opór tarcia i przyczepność podczas transportu płynów.
7. Łatwa instalacja, niski koszt: Można łączyć za pomocą klejenia, gwintowania lub najprościej za pomocą kleju, oferując ekonomiczne i przyjazne dla użytkownika rozwiązanie.

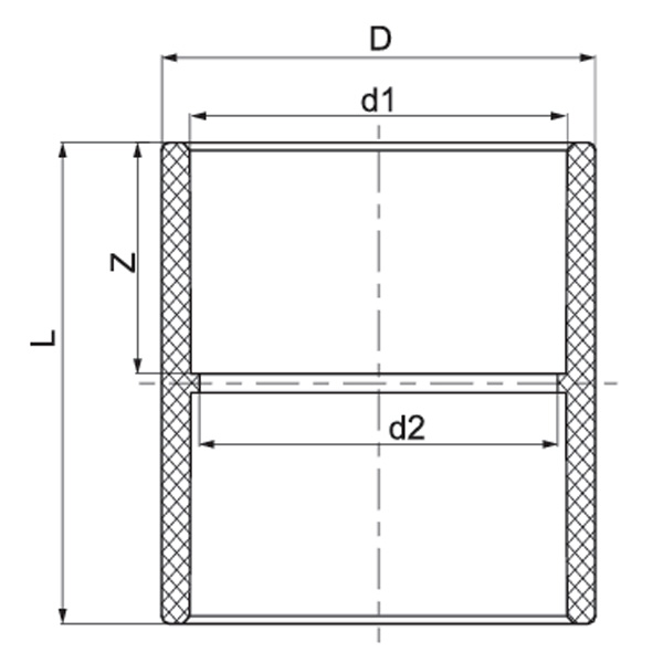
Lista wymiarów

Specyfikacja D1
(mm)
d1
(mm)
d2
(mm)
L
(mm)
Z
(mm)
1/2" (15) 30 21.34 18 49.5 22.5
3/4" (20) 36 26.67 23 56 25.5
1" (25) 44 33.4 29 63.5 29
1¼" (32) 53 42.16 38 69.5 32
1½" (40) 60 48.26 44 75.5 35
2" (50) 73 60.32 55 83 38.5
2½" (65) 89 73.02 68 96 45
3" (80) 106 88.9 83 102.5 48
4" (100) 134 114.3 109 121.5 57.5
5" (125) 162 141.3 134 140.5 67
6" (150) 192 168.28 160 160 76.5
8" (200) 247 219.08 210 211 102
Wiadomość zwrotna
[#wejście#]
O nas
Kaixin Pipeline Technologies Co., Ltd.
Założona w 1999 roku, Kaixin Pipeline Technologies Co., Ltd. to zaawansowane technologicznie przedsiębiorstwo integrujące badania i rozwój, produkcję, sprzedaż i serwis. Firma posiada wiele prestiżowych certyfikatów, w tym National High-Tech Enterprise, „Little Giant” wyspecjalizowane i wyrafinowane MŚP, krajowy mistrz pojedynczego produktu (uprawa), prowincjonalne MŚP oparte na technologii, wyspecjalizowane i wyrafinowane MŚP w Ningbo, mistrz pojedynczego produktu w Ningbo (uprawa), centrum badawczo-rozwojowe w zakresie technologii rur i zaworów polimerowych w Ningbo, zielona fabryka na poziomie okręgu, czterogwiazdkowe przedsiębiorstwo w zakresie innowacji w zarządzaniu oraz poziom dojrzałości zarządzania danymi przedsiębiorstwa 2.
Specjalizujemy się w opracowywaniu, produkcji i dostarczaniu niemetalowych, odpornych na korozję produktów do zastosowań chemicznych, w tym plastikowych zaworów, rur, złączek rurowych i odpornych na korozję pomp. Nasze portfolio produktów obejmuje materiały takie jak PVC-C, PVC-U, PVDF, PPH i FRPP, z szeroką gamą typów i specyfikacji. Warto zauważyć, że nasze przepustnice mogą osiągać średnicę DN1000, a rury i kształtki do DN800, co pozwala wypełnić luki rynkowe i utrzymać naszą przewagę konkurencyjną w branży.
Kierując się zasadą „Napędzani technologią, dotrzymując kroku czasom”, Kaixin przeznacza prawie 10 milionów RMB rocznie na badania i rozwój. Zapewniamy najwyższą jakość produktów poprzez standaryzowaną, zautomatyzowaną produkcję i rygorystyczne pozyskiwanie importowanych surowców. Zgodnie z naszą międzynarodową strategią rozwoju stale monitorujemy światowe trendy rynkowe i wykorzystujemy kanały cyfrowe, aby dostarczać klientom na całym świecie wysokiej jakości produkty „Made in China”.
Ningbo • Baza badawczo-rozwojowa i produkcyjna Fenghua
Dzięki inwestycji o łącznej wartości 200 milionów RMB firma Kaixin Ultra-Pure Pipe Technology (Ningbo) Co., Ltd. utworzyła nowe laboratorium materiałowe we współpracy z uniwersytetami i instytutami badawczymi, zbudowała nowoczesną bazę produkcyjną i zainstalowała 8 w pełni zautomatyzowanych linii produkcyjnych do modyfikowanych tworzyw sztucznych i 8 do materiałów polimerowych. Obiekt zajmuje się badaniami i rozwojem, produkcją i zastosowaniem nowych modyfikowanych tworzyw sztucznych i materiałów polimerowych. Kaixin angażuje się także w przyciąganie najlepszych talentów z różnych dziedzin, ciągłe wprowadzanie innowacji w produktach i rozwój marki, a jego celem jest zdobycie pozycji rozpoznawalnego na całym świecie lidera w dziedzinie badań i rozwoju oraz produkcji polimerowych zaworów, rur i złączek.
Świadectwo honorowe
  • honor
  • honor
  • honor
  • honor
  • honor
  • honor
  • honor
  • honor
  • honor
Wiadomości